Estralia Logo

Estralia
Ingeniería estructural y apoyo técnico a estudios de arquitectura

Colaboración con estudios de arquitectura por parte de un equipo multidisciplinar de Estralia

Apoyo técnico para estudios de arquitectura

Planos técnicos, memorias y mediciones para tu estudio

Ver apoyo técnico
Colaboración en ingeniería estructural de Estralia

Ingeniería estructural

Cálculo, validación y diseño de estructuras

Ver ingeniería estructural

Estralia

Hacemos que tu proyecto avance con el apoyo técnico que necesita.
Trabajamos en dos líneas: apoyo integral a estudios de arquitectura e ingeniería estructural.

Apoyo técnico para estudios de arquitectura

Nos incorporamos como una extensión de tu equipo. Desarrollamos la documentación técnica del proyecto bajo los estándares de tu estudio.

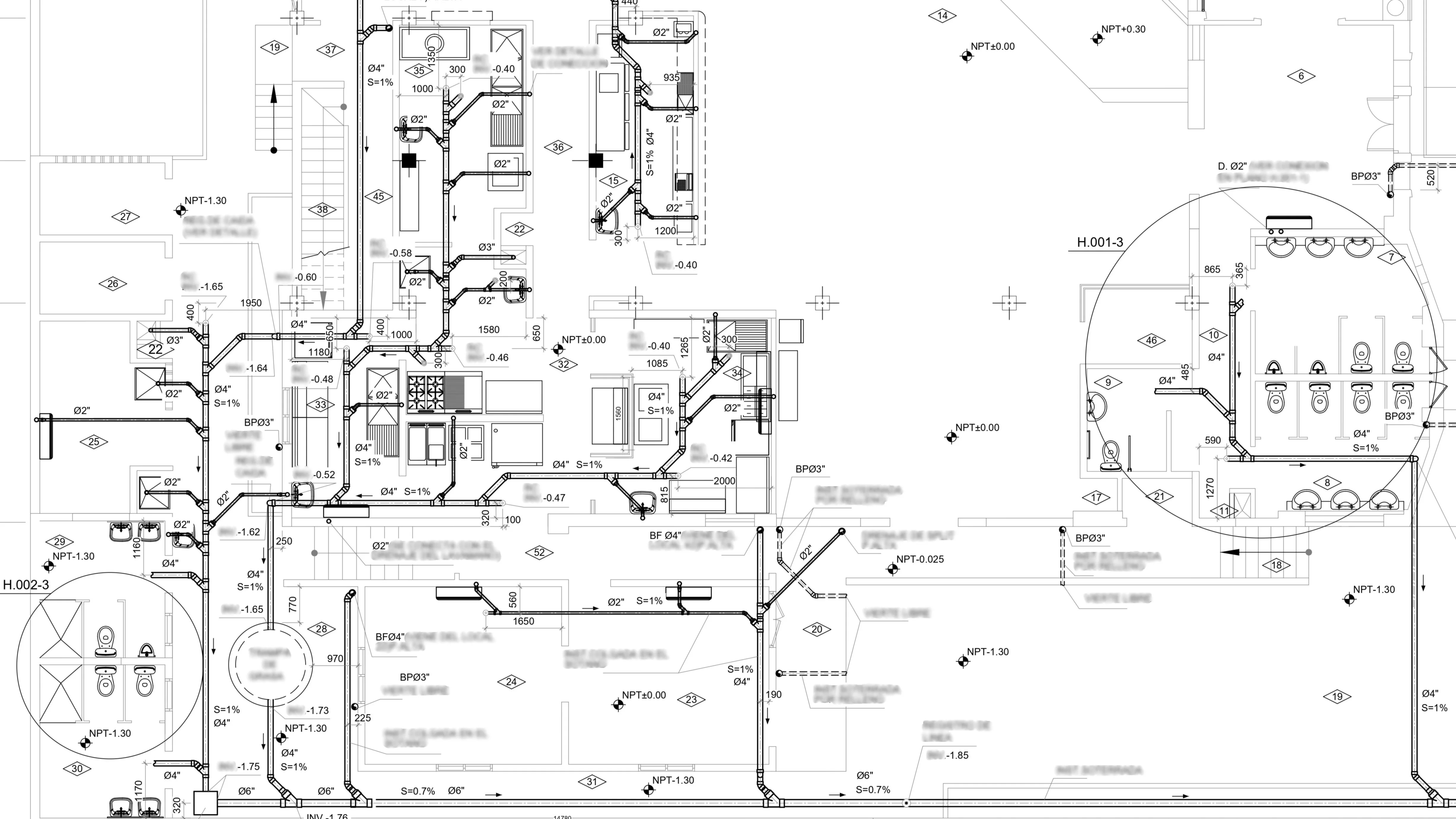
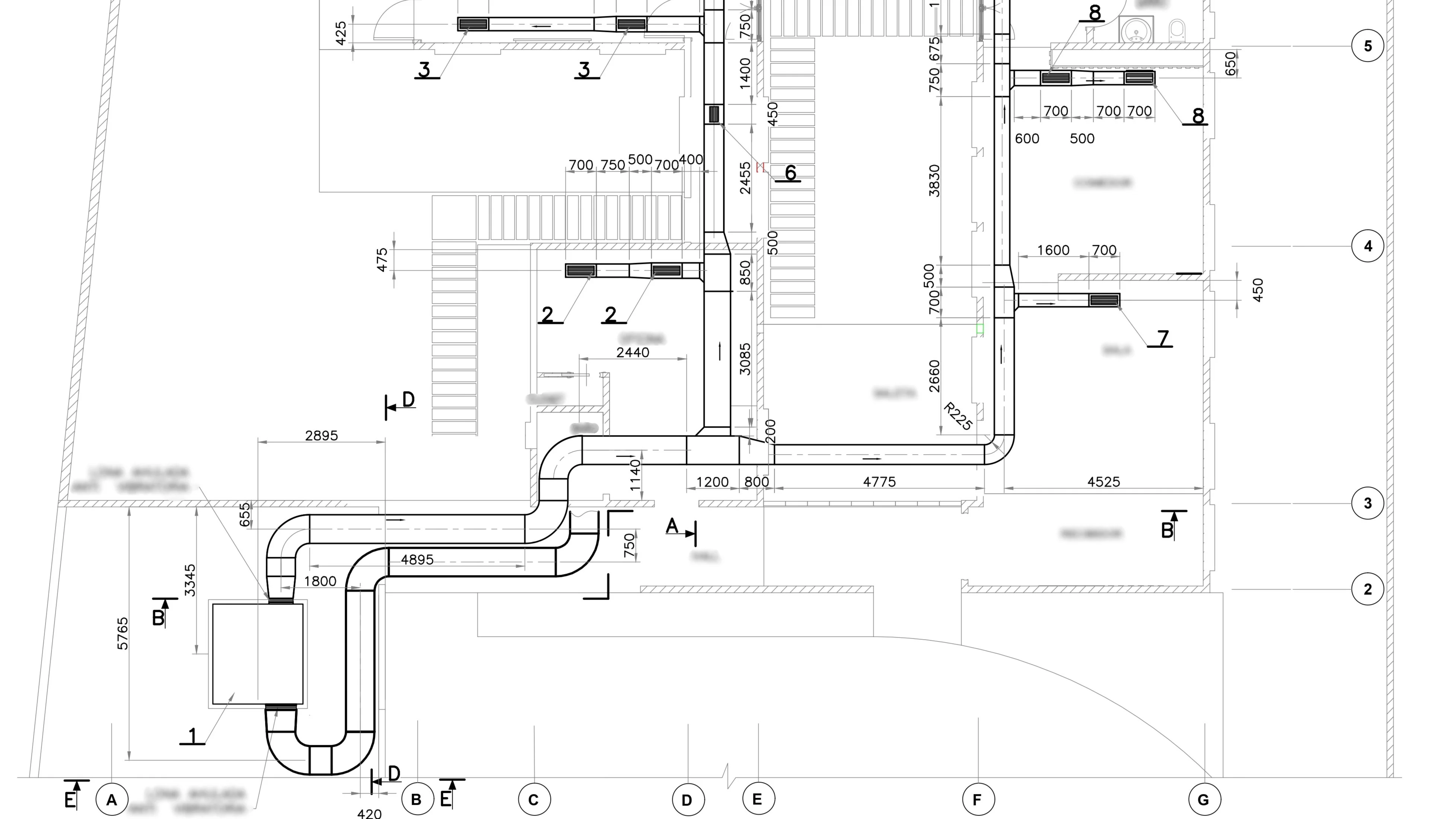
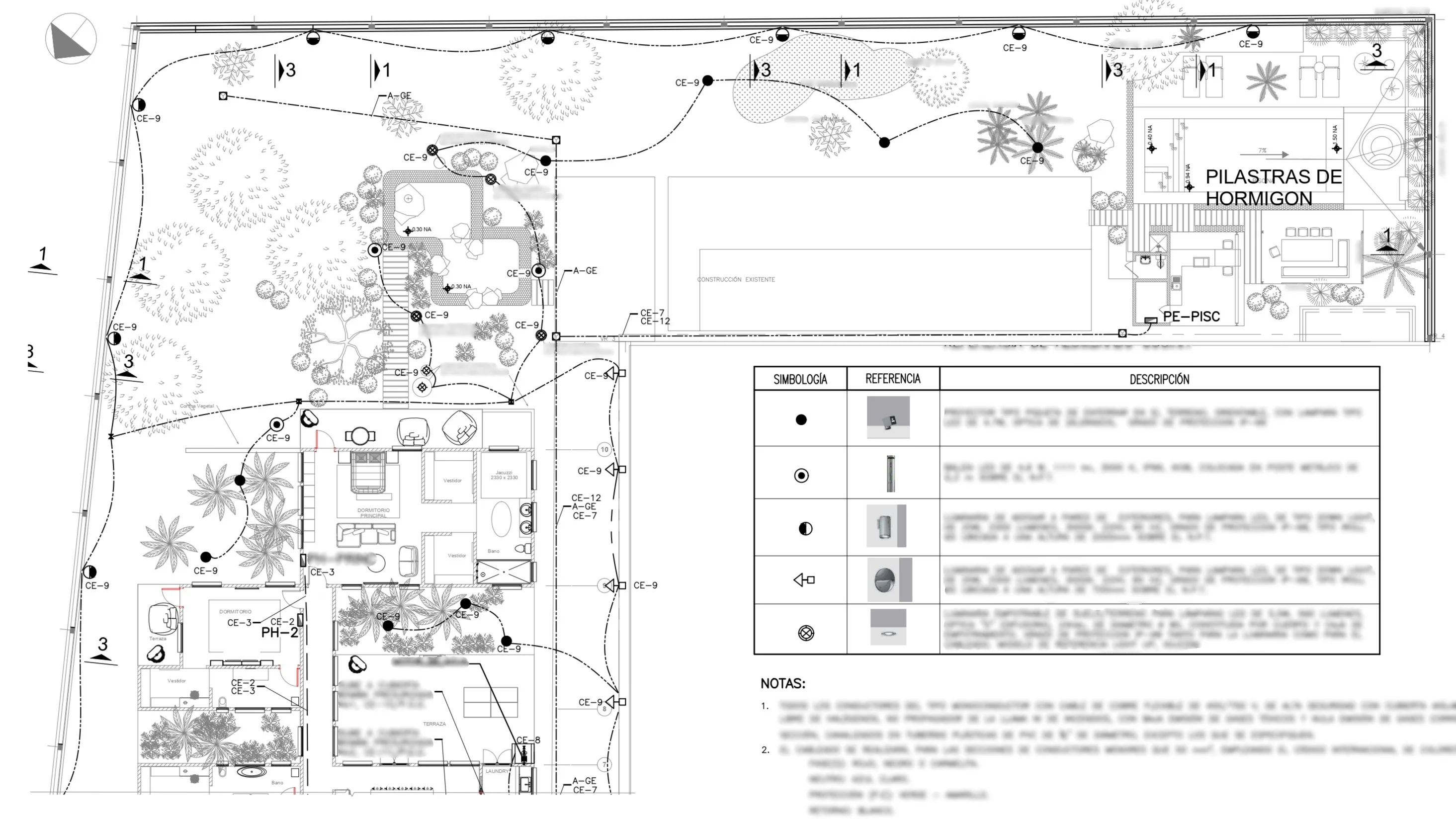
Planos técnicos · Instalaciones (MEP) · Memorias · Mediciones · Presupuesto

Icono residencial

Residencial

Proyectos residenciales en obra nueva, reforma y rehabilitación de vivienda.

• Vivienda unifamiliar y plurifamiliar
• Redistribuciones y refuerzos estructurales
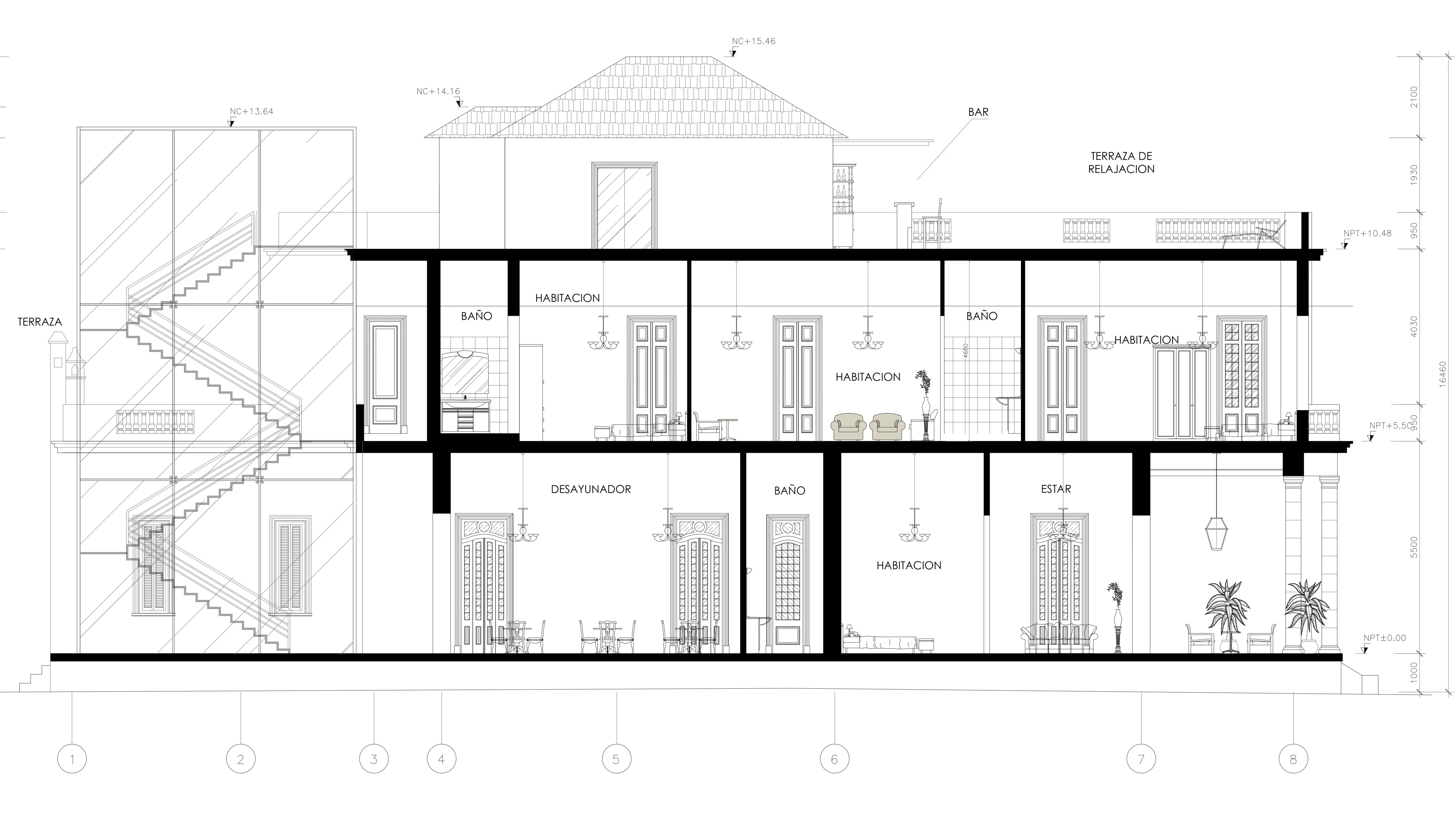
• Planos técnicos, memorias, mediciones y presupuestos

Icono público

Público

Proyectos para administración y promotor público

• Escuelas, centros de salud, hospitales
• Cumplimiento normativo y coherencia documental estricta para licitación pública
• Validación y diseño estructural

Icono terciario

Terciario

Edificación terciaria y espacios comerciales

• Retail, hoteles, oficinas, restaurantes
• Instalaciones al detalle (hidráulica, eléctrica, clima y ventilación)
• Validación y diseño estructural

Desarrollamos planos técnicos, memorias, mediciones y documentación desde anteproyecto hasta proyecto ejecutivo.

  • Coordinación técnica y documentación consistente.
  • Equipo experimentado.
  • Respuesta ágil en picos de carga.

¿Tienes algún proyecto en desarrollo cercano?

Revisamos tu caso en 24 h

Ingeniería estructural

Cálculo, validación y diseño de estructuras metálicas y de hormigón para proyectos de arquitectura, cubiertas fotovoltaicas y sistemas de fabricación modular.

Icono arquitectura

Arquitectura

Apoyo estructural para proyectos de arquitectura (obra nueva y rehabilitación).
Cimentación, estructura y documentación lista para proyecto y obra.

• Memoria / anejo de cálculo de estructural
• Planos de estructura (ejecución y detalles)
• Planos de cimentación
• Mediciones y presupuesto

Icono cubiertas fotovoltaicas

Cubiertas fotovoltaicas

Análisis estructural de cubiertas para instalación fotovoltaica.
Te decimos si la estructura sirve, qué carga admite y si hay que reforzar.

• Naves industriales
• Marquesinas y pérgolas de aparcamiento
• Informe/memoria de verificación de capacidad portante
• Recomendaciones de refuerzo

Icono estructuras modulares

Estructuras de fabricación modular

Diseño y validación estructural de sistemas modulares.
Soluciones pensadas para fabricación, transporte y ensamblaje industrial.

• Viviendas modulares y módulos habitables
• Oficinas, laboratorios y consultorios médicos
• Naves/almacenes y estructuras prediseñadas
• Detalles de uniones y criterio de montaje

Te decimos si sirve, qué cargas admite y qué hay que hacer para que todo cumpla.

Qué entregamos

  • Memoria o informe de justificación de cálculo.
  • Planos de diseño y detalles estructurales, si aplica.
  • Recomendaciones de refuerzo, si aplica.

¿Tienes una estructura a validar?
Respondemos en 24 h

Cuéntanos tu caso

¿Tienes preguntas? Habla con nosotros

Cobertura nacional

Enviar mensaje

Ingeniería estructural y apoyo técnico a estudios de arquitectura en toda España

Contáctanos

☎ +34 641 583 829
☎ +34 645 493 227
✉ contacto@estraliaarq.es